ул.Симферопольская
дом 5, офис 9
Корзина
Корзина пуста
Как сделать электропроводку в квартире своими руками. Как провести самому проводку в квартире
Как правильно провести проводку в квартире
Пошаговая инструкция по монтажу электропроводки в квартире своими руками
Все типовые квартиры оснащаются проводкой еще на стадии строительства, согласно проектной документации. Соответственно будущие жильцы никак не могут повлиять на местоположение кабелей, розеток, выключателей до покупки недвижимости. Но каждый, новоиспеченный собственник вправе по своему усмотрению сделать новую проводку либо модернизировать старую, естественно, в соответствии с правилами. А для этого необходимо «вооружиться» рекомендациями по монтажу электропроводки в квартире своими руками и пошаговой инструкцией по их применению.
- Кому полезно это руководство?
- Составление план-схемы
- Подбор и закупка комплектующих
- Выбираем тип устройства проводки
- Подготовка к работе
- Монтаж скрытой проводки
- Монтаж открытой проводки
Кому полезно это руководство?
Прежде всего тем, кто приобретает квартиру на вторичном рынке жилья либо хочет сделать все по-своему в новостройке.
Во-первых, полностью меняется вся ветхая проводка, так как срок эксплуатации кабеля составляет около 20 лет. После этого срока жилы проводов становятся более хрупкими, вследствие чего возрастает вероятность короткого замыкания и возгорания. Поэтому в старых домах рекомендуется обращать на состояние проводки особое внимание.
Во-вторых, новых жильцов может не устраивать вариант разводки от застройщика, и они делают перепланировку электропроводки и всех помещений. Раньше это называлось евроремонтом и было модно опускать вниз выключатели, переносить розетки и т. д.
В-третьих, всем тем, кто хочет получить новые знания в электрике, чтобы потом все делать самостоятельно.
Составление план-схемы
Эта часть не менее важна, чем все остальные, поэтому не стоит относиться халатно к этому пункту. Правильно спроектированная схема разрешает несколько важных задач:
- Позволяет рассчитать точное количество материалов (проводов, электротоваров, установочных деталей и прочее).
- Упрощает монтаж всей системы электроснабжения помещений.
- Облегчает проведение технического обслуживания и поиска неисправностей электропроводки.
На схеме следует отобразить максимально подробно следующие элементы:
- Розетки. Они могут располагаться в любом удобном месте, но не менее чем за 15 – 20 см от дверных и оконных проемов, а также отступив от тепло-, газопроводов – 40 см. Что касается количества, то на каждые 6 м2 площади принято устанавливать по одной розетке.
- Осветительные приборы. Стандартные планировки рассчитаны на один большой светильник в центре потолка. Но вы можете, по желанию, сделать дополнительные источники света (точечные светильники, бра, ночники и т. п.), предусмотрев под них проводку.
- Выключатели. Обычно их монтируют с правой стороны от дверного проема и на расстоянии 60 или 150 см от пола.
- Пути прокладки кабелей. Указывая их на своем чертеже, помните, что проводка должна идти строго вертикально либо горизонтально, никакие зигзаги не допускаются. Если планируется укладка проводов вовнутрь стен, то следует отступать от перекрытий и проемов 15 – 20 см.
- Распределительные коробки. Их также нужно отобразить на плане, потому что в них производятся все основные соединения кабелей. На каждое ответвление от основной линии ставится коробка, но не больше одной на комнату.
- Распределительный щиток. Обычно силовые шкафы устанавливаются за пределами квартиры, в общем коридоре, тогда можно будет начинать оттуда. Но некоторые планировки рассчитаны на внутреннее размещение щитка, в этом случае задача немного упрощается.

Еще, при составлении проекта-схемы желательно учесть будущую расстановку мебели и предметов интерьера. Это сведет к минимуму использование удлинителей и позволит избежать перекрытия розеток громоздкой мебелью.
Подбор и закупка комплектующих
Сначала нужно правильно выбрать материал кабелей. Отдавайте предпочтение медным проводам, они обладают:
- Повышенной пластичностью (меньше вероятность излома при укладке).
- Коррозионной стойкостью (медленнее окисляются).
- Большим сроком службы относительно алюминиевых.
- Выдерживают большую нагрузку при меньшем сечении.
Но стоимость медных проводов несколько выше.
Затем необходимо разобраться с сечением, а для этого надо рассчитать максимальную мощность всех бытовых приборов. Лучше всего будет разделить силовые кабели на группы и подключить их к отдельным автоматам:
- Розетки (сечение должно быть не менее 2,5 мм, автоматический выключатель – 20 А).
- Освещение (от 1,5 мм, автомат – 16 А).
- Мощные электроприборы (не менее 4 мм, 25 А).
Помните, что кабели разного сечения нужно прокладывать отдельно друг от друга, во избежание перегрева! Для этого подойдут гофрированные трубки.
Далее, можно переходить к подбору розеток, выключателей и расходных материалов (распаечных коробок, кабель-каналов, трубок и пр.) согласно составленному проекту.
Наши читатели рекомендуют!
Для экономии на платежах за электроэнергию наши читатели советуют «Экономитель энергии Electricity Saving Box». Ежемесячные платежи станут на 30-50% меньше, чем были до использования экономителя. Он убирает реактивную составляющую из сети, в результате чего снижается нагрузка и, как следствие, ток потребления. Электроприборы потребляют меньше электроэнергии, снижаются затраты на ее оплату.
Выбираем тип устройства проводки
Электрические кабели можно прокладывать двумя способами:
- Открытым. Это значит, что все провода будут проходить снаружи стен и перекрытий. Если вы решите сделать такую проводку у себя в квартире, то лучше использовать для крепежа пластиковые кабель-каналы. Способ хорош тем, что требует меньше физических и денежных затрат, но менее эстетичный, так как все творчество остается на виду.
- Закрытым. В этом случае электропроводка закладывается в специальные прорези на стенах и перекрытиях или проходит по технологическим отверстиям бетонных панелей. Для получения углублений придется штробить стены специальным инструментом. Это более трудоемкая задача, требующая значительных ресурсов, но зато вы получите идеально ровную поверхность без «гирлянд» из проводков.
Подготовка к работе
Перед тем как начать монтаж электропроводки в квартире, подготовьте следующие инструменты:
- Штраборез, болгарка, перфоратор или дрель (для штробления борозд).
- Набор отверток.
- Пассатижи, кусачки.
- Строительный уровень.
- Индикатор фазы.
- Сверла, насадки на перфоратор.
- Нож и ножовка.
На следующем этапе очистите стены от всех посторонних предметов, которые могут помешать проведению разметки и монтажу проводов. Затем, согласно составленной схеме можно начинать разметку:
- Используя лазерный уровень либо натянутый шнур, отметьте на поверхности стен линии, прохождения кабелей, согласно вашему проекту.
- В местах расположения розеток и выключателей также сделайте соответствующие пометки.

Примерная схема размещения электропроводки в доме
Когда закончите с разметкой переходите к подготовке стен. При организации скрытой проводки необходимо проштробить борозды по намеченным линиям, а также ниши под розетки, распределительные коробки и выключатели.
Для этого используйте штроборез или болгарку, с их помощью получаются наиболее ровные углубления. Если такого инструмента не оказалось, не беда, можно попробовать все сделать перфоратором, но для больших участков – это не самый лучший вариант.Лунки для розеток, коробок и выключателей делают перфоратором, используя специальную насадку – фрезу (коронку) по бетону.
При отсутствии профессионального инструмента, попробуйте взять его напрокат.
Для монтажа открытой электропроводки достаточно выровнять стены, чтобы кабель-каналы ложились ровно, без перекосов.
Монтаж скрытой проводки
На данном этапе у вас должны быть готовы все бороздки и ниши в стенах. Пора узнать, как прокладывается электропроводка в квартире своими руками:
- Отключите главный рубильник в распределительном щитке.
- После счетчика, у вас должны быть установлены автоматы, от которых мы и будем вести провода.
- Все они заводятся в первую распаечную коробку, а уже оттуда распределяются по разным комнатам.
- На подходах к каждому помещению устанавливайте свою монтажную коробку.
- Провода следует помещать в гофрированные трубки из негорючего материала. Это предотвратит перегрев и упростит дальнейшее обслуживание сети.
- Закрепляем электропроводку в углублениях строительными хомутами либо раствором алебастра.
- Устанавливаем розетки и выключатели. Для удобства монтажа, оставляйте запас провода, выходящего из стены – около 20 см.
- Подаем напряжение и проверяем работоспособность системы электроснабжения.
- Заделываем борозды на стенах.

Соединения проводов рекомендуется производить при помощи специальных зажимов. Они могут надежно скреплять сразу несколько кабелей. Избегайте скруток!
Иногда, некоторые мастера предлагают проложить силовые кабели в полу. Это довольно неоднозначное решение, потому что наглухо замурованная в стяжке квартирная электропроводка может впоследствии доставить немало забот. Хотя, грамотно проложенная, она вполне имеет право на существование.

Силовые кабели на полу
Такой способ чаще всего выбирают владельцы частных домов с деревянными полами, ввиду более легкого монтажа и обслуживания.
Монтаж открытой проводки
Рассмотрим самый популярный вариант прокладки наружной электропроводки –кабель-каналы. Они бывают двух типов: настенные и напольные. Количество расходного материала должно быть подсчитано заранее. Итак, порядок действий следующий:
- По размеру отмеченных линий нарезаем каналы. Для этого можно воспользоваться ножовкой или строительным ножом.
- Теперь нужно зафиксировать их на стенах. Самый надежный способ – это дюбель с шурупом. Можно также воспользоваться двухсторонним скотчем или клеем,но такая конструкция вряд ли долго продержится.
- Укладываем провода в каналы и закрываем крышкой.
- Можно устанавливать и подключать электрические приборы.
Существует еще один вид открытой проводки – в ретро стиле. Но в городских квартирах это большая редкость, чаще всего такой способ применяют при обустройстве деревянных загородных домов.
Как видите, проводка в квартире своими руками – не такая уж и плохая затея. Используя пошаговую инструкцию вполне можно проделать эту работу самому, не прибегая к высокооплачиваемой помощи квалифицированных специалистов. Хотя времени уйдет гораздо больше, но гордость за себя превысит томительное ожидание конца ремонта.
Электропроводка в квартире своими руками – пошаговая инструкция к применению
Приобрели ли вы новую квартиру в новостройке или решили провести капитальный ремонт старой в кирпичном или панельном доме, все это неважно, потому что сделать электропроводку своими руками не очень сложно. Конечно, понимание происходящих процессов и навыки работы с нехитрыми инструментами вам понадобятся обязательно. Поэтому предлагаем ознакомиться с таким процессом, как электропроводка в квартире своими руками (пошаговая инструкция).

Перед тем как начать разбираться в теме статьи, необходимо обозначить некоторые позиции, а точнее сказать, различия производимого процесса относительно типа дома. Во-первых, это касается материала, из которого дом возведен. Это может быть кирпич или готовые железобетонные панели. В чем же разница?
Все дело в том, что в панелях многоквартирного дома на заводе размещаются штробы, в которых и укладываются электрические провода. Еще на стадии строительства уже определяется схема разводки, которая определена схемой расположения штроб. То есть, производители сами решают, где и сколько должно быть розеток и выключателей. Потребителя об этом никто не спрашивает.
Что касается кирпичного здания, то здесь также используется определенная схема разводки электрических кабелей, но при этом скрытая разводка производится по кирпичной кладке с использованием разных крепежных деталей. И все это остается под штукатурным слоем.
Этапы проведения электропроводки
Как и любой монтажный процесс, связанный со строительством, электрическая проводка делится на несколько основных этапов. Основное требование – соблюсти точную последовательность их проведения, учитывая все нюансы, касающиеся правильного расчета схемы и кабелей, плюс – сделать грамотно монтаж. То есть, необходимо соблюсти все требования пошаговой инструкции.

Схема проводки
Отличается ли схема проводки в квартире от домашней схемы? Нет, не отличается. Все требования и нормативы здесь также учитываются. Какие именно требования:
- Все шлейфы прокладываются только горизонтально и вертикально. Никаких наклонных контуров.
- Расстояние до потолка или пола максимум 10 см.
- Подальше от водопроводных труб и отопительной системы.
- Можно разводку сделать скрытой, открытой или комбинированным способом.
Если все это понятно, то переходим к самой схеме. Что необходимо сделать и учесть в первую очередь.
- Количество выключателей и розеток в комнатах, их точное месторасположение.
- Количество и месторасположение источников света.

Исходя из этого, можно посчитать количество распаячных коробок и места их размещения. Будет хорошо, если схему по комнатам набросать на бумаге.
Внимание! Первая распаянная (распределительная) коробка будет располагаться в прихожей над входной дверью. Поэтому под нее придется изготовить нишу. Чтобы не ошибиться с местом установки, точно определите место вхождения в квартиру вводного кабеля, идущего от распределительного щитка.
Выбираем материалы
Теперь основная задача – выбрать провода по их сечению. Вводной кабель должен иметь сечение 6 мм². Он должен быть медным. По комнатам разбрасываются провода с разными сечениями, все зависит от нагрузки от электрических приборов и освещения в каждой комнате. К примеру, в туалете устанавливается только одна лампочка. В спальне один потолочный светильник или два настенных и несколько бытовых приборов типа фен, массажер (иногда пылесос) и так далее, которые потребляют минимум электроэнергии.
А вот кухня – самая многопотребляемая комната в квартире. Здесь самое большое количество бытовых приборов. Кстати, к некоторым из них рекомендуется подвести отдельный шлейф от распределительного щитка. К примеру, к посудомоечной машине подводится кабель 2,5 мм². В саму же кухню подводятся провода сечением 4 мм². Как рассчитать необходимое сечение кабеля для каждой комнаты, можно узнать из другой статьи на нашем сайте.
Монтажные работы
Итак, схема готова, подобраны кабели по потребляемой мощности, можно проводить монтаж. Перед тем как провести проводку, необходимо в каждой комнате по стенам нанести контуры, по которым будут укладываться электрические провода.
Самая сложная проводка – скрытая. В чем ее сложность? Если это касается панельного дома, то придется стены штробить, используя болгарку. Под новые розетки и выключатели обязательно высверливаются новые ниши круглой формы. Для этого используется перфоратор и рабочий инструмент – коронка. Вся пыльная работа должна производится одновременно. После чего можно переходить к укладке проводов.
Когда монтаж электрической сети проводится в кирпичном новом доме, то его обычно проводят до проведения штукатурных работ. Если в кирпичном доме, где проводится ремонт, то есть, без снятия штукатурного слоя, то технология проведения точно такая же, как и в доме панельном со штроблением стен. Но углубляться в стены глубоко не стоит, просто необходимо сделать канавки в штукатурке до кирпичной кладки.
Пример прокладки электропроводки при помощи кабель-канала
Что касается потолочной проводки, то здесь проще всего. Ведь потолочное перекрытие в большинстве случаев – шестипустотная плита. Так что провести в ней кабель не составит большого труда. Главное – точно попасть в пустой канал перфоратором и протащить кабель до места установки светильника. Если потолок будет обшиваться подвесной или натяжной конструкцией, то кабель можно провести прямо по базовой потолочной поверхности в виде открытой разводки, закрепляя провода хомутами или другими крепежными изделиями.
Существует вариант напольного проведения электрической схемы до розеток. Для этого лучше всего использовать специальные плинтусы с кабель-каналами. Вариант на самом деле очень удобный. И не только в плане проведения монтажных работ, но и в плане ремонта. Всегда можно демонтировать плинтусы (это несложно), проверить разводку на наличие неисправностей и провести замену вышедшего из строя кабеля на новый.
Соединение шлейфов
Казалось бы, что может быть проще, чем соединить между собой электрические провода. Никто спорить не будет, сложного здесь мало. Но придется учитывать некоторые правила, которые гарантируют долгую эксплуатацию всей электрической схемы.
- Если делается скрутка, то места соединений необходимо хорошо заизолировать. Оптимальный же вариант – закрыть стык пластиковым колпачком.
- Идеальное соединение – при помощи клемм. О пайке говорить не будем, это не самый простой способ. Хотя самый надежный и эффективный.
- Нельзя соединять между собой медные и алюминиевые жилы. Если другого варианта нет, то концы алюминиевого провода омедняются.
- Все соединения проводятся только внутри распределительных коробок.
Окончательный этап после соединения всех контуров в единую сеть – заделка штроб скрепляющим раствором (штукатурным или шпаклевочным). Установка розеток и выключателей проводится после окончания отделочных работ.
Колпачек для скрутки проводов
Полезные советы
- Что касается схемы разводки, то оптимальный вариант – разбить ее по комнатам. То есть, каждая комната – это отдельный участок со своей нагрузкой, а, значит, со своим сечением кабеля. Имеется в виду кабель от первой распределительной коробки над входной дверью в квартиру, до распредкоробки над дверью в комнату. Внутри же комнаты по светильникам и розеткам разбрасываются провода с меньшим сечением, подходящим под определенные нагрузки, запланированные вами предварительно, исходя из количества и общей мощности приборов-потребителей.
- Схему разводки, а также монтажные работы, необходимо начинать от дальней комнаты. Последняя комната – прихожая.
- Необходимо обходить схемой бетонные конструкции типа перекрытия над окнами и дверьми. Во-первых, это монолитное изделие, которое штробить очень сложно. Во-вторых, не дай бог при установке карнизов наткнуться сверлом на кабель. Вся работа пойдет насмарку.
- Правильный подсчет количества распределительных коробок даст возможность сэкономить длину используемого кабеля.
- Оптимальный вариант, если уложить кабель в гофрированный шланг, а уже его в штробы.
Отличительные особенности вводной группы
На этом хотелось бы остановиться подробнее, потому что вводная группа (распределительный щит) может располагаться как внутри квартиры, так и за ее пределами. Так вот если в многоквартирном доме на одной лестничной клетке не более четырех квартир, то распределительный щит располагается именно здесь. То есть, в саму квартиру проводится только вводной кабель.
Если квартир больше четырех, то обычно на лестничной клетке устанавливается щит, но и внутри каждой квартиры располагается свой собственный щиток. Есть типы многоквартирных домов, где проводниковая группа (кабели питания) располагаются внутри квартир, а, значит, и распределительный щиток находится тут же.

Заключение по теме
Электропроводка в квартире своими руками без приглашения профессионального электрика – процесс реальный. Конечно, он не самый простой, но если разобраться в этапности его проведения, то можно быть уверенным, что все нюансы, описанные выше, будут соблюдены. А это гарантия высокой надежности сети и долгосрочной ее эксплуатации. И все же основной упор рекомендуется делать на подсчет мощности потребителей и выборе сечения кабеля.
Электропроводка в доме своими руками – схемы, материалы и нюансы монтажа
Как правильно провести проводку в доме
Разводка электропроводки в квартире – схема, материалы и нюансы
Электрика в квартире — монтаж и правила проложения, гарантирующие работоспособность сети и безопасность
Обилие современной бытовой техники в квартирах предъявляет высокие требования к энергосети. Зачастую электрика в квартире старого жилого фонда уже отслужила свое и плохо переносит высокие нагрузки от множества одновременно включенных в сеть приборов. Для новостроек это не так критично, так как можно все спланировать заранее и сделать с запасом, применяя современные технологии. Но если после приобретения квартиры Вы обнаруживаете старую или маломощную электропроводку, её замена потребует выполнения капитального ремонта всей квартиры. Для замены и монтажа можно пригласить специалистов, а можно все сделать самостоятельно.
Содержание
Электрика в квартире своими руками – дело, требующее повышенного внимания к выполняемой работе, неукоснительного исполнения норм техники безопасности и правил по монтажу.
[include id=»1″ title=»Реклама в тексте»]
Малейшие ошибки могут повлечь короткое замыкание и как следствие – пожар. Поэтому существует ряд определенных правил, придерживаясь которых можно сделать качественную электропроводку.

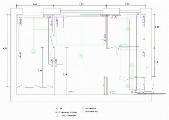
Так может выглядеть схема электропроводки в квартире
1. Первое, что необходимо создать, это проект энергоснабжения квартиры. Этот документ включает в себя схему разводки проводки, систему резервного питания, если таковая присутствует, перечень планируемой аппаратуры и расчеты мощностей и нагрузок. Также в проектной документации указывается тип проводов и кабелей, способ и схема их прокладки, количество материалов.
2. Для проводки в квартире можно использовать следующие типы проводов и кабелей с медной жилой и оболочкой из негорючих материалов или малой дымообразующей способностью: ВВГ-2*6 или ВВГ-5*6 для подключения к щиту В.Р.У. ВВГ-3*2,5 для основной проводки к распредкоробкам и розеткам, ВВГ-3*1,5 для проводки от распредкоробок до выключателей и приборов освещения. В квартире можно устанавливать автоматы следующей мощности: 16 А, 20 А и 25 А. 16 А можно устанавливать для освещения, а 20 А – для розеток. 25 А подойдет для высокомощных приборов.
3. Для стационарных высокомощных приборов следует проложить отдельные линии и установить отдельные автоматы. Также для повышения безопасности необходимо разделить линии для розеток и осветительных приборов с выключателями.
4. Все щитки освещения, автоматы, счетчики, розетки и выключатели должны находиться в легкодоступных местах.
5. Выключатели устанавливаются возле дверного проема рядом с дверной ручкой на высоте 80 см или 1,5 м.
6. Розетки размещаются на высоте до 1 м. Это делается для предотвращения короткого замыкания при затоплении помещения. Также рекомендуется определенное количество розеток: в жилых помещениях 1 розетка на 6 м 2. в коридорах не менее 1 розетки на 10 м 2. кухнях – минимум 5, но можно и больше, если запланировано большое количество техники. Установка розеток в туалете запрещена, в ванной можно поставить при условии прокладки отдельной линии и распределительного трансформатора. В целях безопасности розетки следует ставить в 50 см от газовых и электроплит.
7. Прокладка проводов и кабеля в квартире может осуществляться скрытым или открытым способом. При этом необходимо придерживаться следующих требований: укладка проводится строго в горизонтальных и вертикальных штробах или коробах, при горизонтальной прокладке высота от пола должна составлять минимум 200 мм, от потолка 150 мм, от балок и карнизов 50 – 100 мм. Выполняя вертикальную прокладку, необходимо отступать от дверных и оконных проемов минимум 100 мм.
8. Для возможности ремонта или замены проводки все провода рекомендуется прятать в специальную гофру.
9. При прокладке необходимо следить, чтобы провода не соприкасались с металлическими частями строительных конструкций.

Провода соединяются в распредкоробках и затем расходятся к потребителям
10. Разводка проводов проводится в специальных распределительных коробах, а оголенные концы соединяются между собой путем пайки, прессовки или специальными наконечниками СиЗ. Запрещается соединение медного и алюминиевого проводов.
11. При закрытом способе монтажа глубокие штробы запрещается делать в несущих стенах с целью сохранения их цельности и общей прочности.
12. Все работы проводятся при обесточенной сети в квартире.
Провести электрику в квартире не представляет особого труда для тех, кто умеет обращаться с инструментом. Монтаж электрики в квартире можно выполнить двумя способами: скрытым и открытым. К скрытому способу прокладки относится вмуровывание проводки в стены, потолочные перекрытия и пустоты, под напольное покрытие и за гипсокартонными листами. К открытому способу монтажа относят прокладку проводов и кабелей в специальных коробах, кабель – каналах, при помощи скоб и клипс. Оба эти способа имеют свои преимущества и недостатки. Для выполнения монтажа в первую очередь необходимо отодвинуть всю мебель и бытовую технику от стен, если проводится капитальный ремонт квартиры, то убрать весь строительный мусор.

Укладывать проводку скрытым способом принято в штробах, которые после установки заделывают штукатурной смесью или гипсом
Этот способ монтажа наиболее пыльный и грязный, так как придется штробить стены и потолок или срывать напольное покрытие. Поэтому выполнять его лучше всего во время проведения капитального ремонта квартиры. Если в проекте электроснабжения запланирована разводка по стенам, тогда наносим на стены и потолок места под проводку, берем в руки перфоратор или болгарку и вырезаем канавки определенной ширины и глубины. Глубину выбираем из расчета, что после укладки проводки или кабеля слой штукатурки будет не более 10 мм, ширина неограниченна. Места для розеток и распредкоробок вырезаем при помощи специальной коронки. Помним о несущих стенах и делаем в них штробы не слишком глубокие.
В квартирах панельных домов межэтажные перекрытия имеют внутренние пустоты, в которых также можно протянуть проводку для осветительных приборов. Сегодня более популярны монолитные конструкции с кирпичными межкомнатными перекрытиями, в таких квартирах штробы можно делать во всех стенах, главное, не зацепить несущие монолитные балки. Наиболее экономным вариантом скрытого монтажа является укладка проводки под напольным покрытием. Главное, на что следует обратить внимание в этом случае, — наличие гофры для каждого провода. Делается это для удобства в случае ремонта или замены проводов и для дополнительной изоляции.
[include id=»2″ title=»Реклама в тексте»]
После того, как будут оборудованы штробы, можно приступать к установке распределительного щитка освещения и укладке провода. Сам щиток может быть навесным или вмурованным в стену. В новых домах для него предусмотрена специальная ниша, а в старых его можно закрепить к стене при помощи саморезов. Внутри щитка устанавливаем автоматы, от которых и будут отходить провода ВВГ-3*2,5 на розетки и основную магистраль. От распредкоробок до выключателей и осветительных приборов прокладываем провод ВВГ-3*1,5. Для стационарных приборов большой мощности прокладываем отдельные линии из провода ВВГ-3*2,5.
В местах монтажа точек подключения делаем выпуск провода в 15 – 20 см. Теперь в распредкоробках соединяем провода в единую сеть. Самым простым и качественным соединением будет использование СиЗ. Чтобы во время соединения не перепутать провода, на них можно навесить бирки с определенной маркировкой. После этого при помощи тестера проверяем всю сеть на предмет повреждений и ошибок. Если все нормально, тогда замуровываем все провода, устанавливаем на места выключатели, розетки, осветительные приборы.

Монтировать электропроводку открытым способом можно в кабель-каналах, способ привлекает наличием защиты и возможностью без проблем найти и устранить поврежденный участок провода
Для помещений, где запрещено или невозможно проложить провода скрытым способом, применяют открытый монтаж проводки. Для этих целей используют короба, кабель – каналы или специальные клипсы. Прокладка довольно простая и проводится только по стенам и потолку. Первое, что делаем, это намечаем место прокладки проводов и засверливаем отверстия для крепежа с шагом 40 – 50 см, если место для провода меньше 0,5 м, тогда делаем шаг в 15 см для двух точек крепежа. После этого закрепляем к стене или потолку коробы, кабель – каналы или клипсы. Что это будет – выбор за Вами. В местах разводки устанавливаем внешние распредкоробки, а соединения проводов, разводку и установку точек подключения проводим так же, как и в скрытом способе монтажа. Преимуществом открытого монтажа является легкий доступ ко всей проводке, а недостатком – не слишком эстетический вид.
Монтаж электрики в квартире можно считать законченным. Осталось подключиться к общей энергосети. Для этого придется обращаться к электрикам из ЖКХ, только они имеют полное право осуществить подключение к счетчику. Если все было сделано правильно и без нарушений правил и норм, электрик без лишних вопросов даст добро на подключение.
Рекомендуем похожие статьи
Источники: http://electricvdele.ru/montaj/elektroprovodka-v-kvartire-svoimi-rukami-poshagovaya-instrukciya.html, http://onlineelektrik.ru/eprovodka/montiruem/elektroprovodka-v-kvartire-svoimi-rukami-poshagovaya-instrukciya-k-primeneniyu.html, http://strmnt.com/dom/comm/electric/elektrika-v-kvartire-montazh.html
electricremont.ru
Электропроводка в квартире своими руками пошагово
Для того чтобы сделать электросеть в доме необходимо составить схему расположения электрических линий. Проводка в квартире своими руками может быть сделана при соблюдении рекомендуемых инструкций. Также следует консультироваться с квалифицированными специалистами в этой сфере, чтобы избежать частых ошибок при составлении чертежа.
Проект электропроводки

Распределение счетчика и автоматов на схеме
При создании проекта электропроводки нужно использовать копию плана новостройки. В нем отмечаются места протяжения кабелей. Это поможет лучше сориентироваться, в каком месте расположить выключатели, розетки, светильники, а также другие составляющие элементы. Схема необходима при смене старой проводки на новую. Электропроводка в квартире своими руками может быть проведена после составления проекта. Этот процесс достаточно сложный и небольшие просчеты могут существенно повлиять на всю работу.
Предварительная схема позволит с большей точностью сделать монтаж электрической сети, а также сохранить информацию о расположении проводов в помещении. Начало чертежа начинается от щитка. Устройство защитного отключения (УЗО) является очень важным устройством, которое обеспечивает безопасность квартире. Щиток предотвращает протекание тока с повышенным напряжением в сети, а также снижает вероятность воспламенения при замыкании проводки. УЗО в старых квартирах почти не использовался.
Во время составления проекта рекомендуется учитывать определенные правила. Вся электропроводка в многокомнатной квартире должна располагаться в вертикальном и в горизонтальном положении. Это требование позволяет снизить вероятность повреждения проводов. Таким образом, по установленной розетке можно определить, как проходит электрический кабель, чтобы при других строительных работах его случайно не пробить.

Нужно учитывать поворот трассы, который должен проводиться под прямым углом. Не рекомендуется изгибать в нескольких положениях провод при протягивании его из одной точки в другую. Это увеличивает протяженность линии, прибавляет лишние места изгиба и уменьшает площадь для монтажа стен или пола. Лучше всего стелить электропроводку под потолком. Верхняя часть стены в меньшей степени подвержена повреждениям, поэтому рекомендуется прокладывать кабеля на расстоянии 20-25 см от потолка. Эта высота является оптимальной, чтобы снизить вероятность повреждения, и не усложнять процесс ремонта.
Если проводка стелется по полу, тогда рекомендуется сделать это с использованием специального электротехнического плинтуса. Включатели обычно располагаются при входе в комнату, и чаще всего с той стороны, где расположена дверная ручка. Расположение выключателей не определятся точной высотой, но обычно это 80-85 или 150 сантиметров от пола. Евростандарты предусматривают установку выключателей пониже, чтобы у детей была возможность легко дотянуться до них.
При составлении проекта следует учитывать, что розетки монтируются в нижней части стены (25-30 см от пола). Если есть необходимость размещать выше, тогда провода лучше протягивать снизу вверх. Размещение розетки на более высоком уровне может быть вызвано расположением мебели (столешница в кухонной комнате) или для удобства. Рекомендуется устанавливать по одной розетке на каждые 6 квадратных метров многокомнатной квартиры. Для кухни обычно несколько другие требования. Так как в этом помещении используется достаточно много электротехники, там может быть установлено до 5-6 розеток, в зависимости от планировки кухни и ее размеров. Учитывается и расстояние от дверного проема или окна до места крепления (не меньше 10 см).

Распределительная коробка должна быть в каждой комнате. От этого зависит разводка электропроводки в квартире, что обязательно нужно учитывать при создании схемы. Перед составлением проекта желательно сразу спланировать будущее расположение мебели или бытовой техники. Это поможет предотвратить перекрывание мебелью доступа к розетке, также некоторые шнуры приборов могут не доставать до источника питания.
Настоятельно не рекомендуется делать розетки в ванной комнате. Это обусловлено техникой безопасности. После принятия ванны в этом помещении очень высокий уровень влажности, что может привести к негативным последствиям (короткое замыкание, гниение).
Методы
После того как была удалена старая проводка нужно сделать монтаж новых кабелей по определенной схеме.
Открытый метод проведения электросети
Это способ может применяться для освещения наружных помещений (балкон, лоджия), для подвалов и мастерских. Также этот метод подходит для временного создания освещения. Из высокой вероятности механического повреждения электропроводов наружное расположение кабелей не подходит для многокомнатных квартир или частных домов. Также открытая проводка делается в таких местах, где нет возможности их скрыть. Этот вид может встречаться в старых домах, поскольку в новых зданиях этого уже не делают.

Скрытый метод
Самый распространенный способ укладывания проводки в помещениях. Обычно используется для жилых квартир. Провода монтируются в стены, под половые покрытия, чтобы избежать возможного повреждения. Техника безопасности требует снижения контакта с линиями электропередач. Комбинированный метод. Этот способ обычно применяется для проведения кабелей в офисах. Проводка делается в рукавах плинтуса. Достаточно удобный способ укладывания электропроводки, но не безопасен.
Подготовка
После составления проекта электропроводки в многокомнатной квартире нужно обзавестись всем необходимым инструментом, строительными материалами. Самым важным, конечно же, является выбор проводов для помещения. К этому следует подходить со всей серьезностью. Если нет необходимых познаний в этой сфере, то лучше обратиться к специалистам.

Перед тем как провести новую проводку нужно удалить старую. Для этого следует обесточить сеть, и провести демонтаж кабеля. Если старое расположения линии не подходит, тогда нужно подготовить место для прокладывания проводки. Старые места заделываются цементом и алебастром. Желательно дать время высохнуть.Перед началом работы следует нанести разметку простым карандашом на стенах. Можно даже расчертить точное место будущих углублений, куда будет помещаться электропроводка. Это поможет точно перепроверить соответствие проекта с натуральным масштабом. Затем можно приступать к проведению электросети.
Видео “Своими руками: часть 1”
Пошаговая инструкция монтажа
Сделать монтаж электропроводки в помещении самостоятельно без опыта весьма сложное занятие. Желательно следовать пошаговой инструкции по проведению электросети в многокомнатных квартирах и частных домах. Рекомендуется перед началом работ освоить технологию укладывания кабеля, проконсультироваться с электриками, узнать некоторые тонкости, которые могли бы облегчить этот процесс.
Обычно рассматривается при монтаже скрытая проводка. Для этого в стенах помещения по составленной схеме делается штроба. Это специальная канавка, в которую будет укладываться кабель. Штроба делается от электрического щитка. Ее глубина и ширина делается с учетом толщины провода и защитного кожуха, если такой будет использоваться в помещении. Выбивание штробы обычно делается при помощи перфоратора. Он имеет специальный режим, который позволяет не просверливать отверстия, а выдалбливать ложбину. Этот инструмент используется профессионалами. Особое сверло позволит делать штробу ровной, чтобы провести кабель ровно, а не по диагонали.

Проложенные провода закрепляются густым алебастром. Этот материал оптимален, так как быстро высыхает, а при необходимости его можно быстро удалить и вытащить шнур.После закрепления провода от щитка до всех ключевых точек в многокомнатной квартире или частном доме нужно сделать углубления для будущих розеток, распределительных коробок, выключателей.
Для этого используется перфоратор со специфической коронкой. Эта насадка имеет форму кольца с зубцами. Она высверливает круглое отверстие для помещения в него коробки. Неровности, которые возникают в процессе монтажа, исправляются при помощи нанесения штукатурки в несколько слоев. После завершения прокладывания проводов можно подсоединять контакты к щитку на лестничной площадке. Но он должен быть постоянно выключен, а также находиться в сухом и доступном месте. Для возможных ремонтных работ, которые могут проводиться в будущем, лучше всего оставлять запас провода не менее 15 сантиметров.

При стабильной подаче тока можно приступить к монтированию розеток и выключателей, поочередно проверяя функционирование каждой, используя мультиметр.
Также можно подключить к сети вольтметр для того, чтобы следить за стабильность напряжения. Тестирование проложенной линии можно провести после изоляции всех выходов кабеля и подключении всех розеток, выключателей.
Если никаких проблем при включении защитной системы не обнаружено, тогда можно приступить к испытаниям всей линии различной электротехникой. Монтаж всегда должен проходить с обесточенной электросетью. Это обязательное условие техники безопасности. Eсли при включении сети обнаруживается запах горелого или звук искрения, нужно немедленно отключить щиток и провести проверку. Очень важно устранить причину неполадки на первом этапе проведения электросети, так как от этого зависит безопасность жилого помещения. При недостатке опыта и безрезультатного поиска поврежденного участка следует пригласить мастера, который поможет устранить неполадку.
Видео “Своими руками: часть 2”
Данное видео поможет всем, кто желает смонтировать электропроводку у себя дома самостоятельно. Не пропустите.
otoke.ru
Как правильно развести проводку в квартире
Как сделать разводку электропроводки в квартире

Капитальный ремонт в квартире или доме подразумевает замену или реконструкцию проводки. Хотя многие забывают об этом важном этапе и спохватываются, когда материалы куплены и процесс отделки помещения уже начался.
Правильное выполнение электропроводки в квартире
Как правило, в старых домах проводка или неисправна, или близка к этому состоянию. А ведь исправные электропровода в доме – залог безопасности жизни и здоровья как жильцов квартиры, так и их соседей. Кроме того, современные технологии позволяют защиту населения сочетать еще и с экономией электроэнергии. Если у Вас есть накопительный водонагревательный бак, то Вы можете установить у себя переключатель «День-Ночь» для минимального использования электричества в ночное время.
Начинать разговор о проводке надо с того, что для каждого помещения она делается индивидуально.
Рассмотрим поэтапную прокладку электрических проводов в квартире.
Первым делом необходимо составить схему разводки электрической проводки. Для этого на плане квартиры указывается размещение распределительного щита. Далее высчитывается количество будущих розеток из расчета не менее 1 шт. на каждые 6 м2 (для комнат) и по 2 шт. на 6 м2 (для кухни и ванной), а также количество светильников и люстр.
Затем на плане обозначаются провода, соединяющие электрощит и осветительные приборы и розетки. Следом на схему наносятся точки электропотребления и можно переносить этот план на стены квартиры. Нужно постараться подобрать самую короткую трассу для кабелей, однако прокладываться они должны строго вертикально или горизонтально с соблюдением прямых углов не ниже 15 см от потолка.
Также на схему наносятся места установки распределительных коробок, в которых соединяются кабели. Их лучше располагать в труднодоступных местах и над выключателями. На одно помещение больше одной коробки вряд ли понадобится.
Если в помещении имеются деревянные полы и будет сделана стяжка, то лучший вариант монтажа проводки – по полу в металлических трубах.
Выключатели устанавливаются на расстоянии 90 см от пола, а розетки – не менее 30 см.
Желательно заранее определиться с местами расположения мебели и электроприборов (холодильника, стиральной машины и т. д.) для удобства подключения техники.
Следующим шагом является подача вводного кабеля в распределительный щит. Электрический щит представляет собой устройство для приема и распределения электроэнергии при напряжении менее 1 кВ переменного тока частотой 50–60 гЦ, а также для редкого включения и отключения линий групповых цепей и для их защиты при коротких замыканиях и перегрузках.
Распределительный щит может быть как внутренне установленным (располагаться в нише), так и накладным (монтироваться на стене). Лучшее место для этого устройства – сразу около входа в квартиру.
Электрощит включает в себя вводный выключатель нагрузки, счетчик электроэнергии, одно или несколько устройств защитного отключения (УЗО), автоматические выключатели и другие элементы.
Теперь можно приступать к штроблению стен и креплению электрического кабеля в них. В новых панельных домах под провода обычно выполняют специальные каналы, однако мало кому так везет. Поэтому, если Вам приходится штробить стены самостоятельно, то каналы под кабель должны быть строго горизонтально на одном уровне с розетками. А для выключателей траншеи необходимо делать вертикальными до уровня 10 – 20 см ниже потолка и далее горизонтально к щиту.
Глубина штробы – 1,5–2 см.
Крепление проводов осуществляется с помощью пластиковых хомутов или посредством замазывания алебастром.
После того как провода проложены и закреплены, их необходимо подключить к электрощиту. Подсоединение кабелей может быть выполнено тремя методами: пайкой, сваркой, скруткой, опрессовкой, клеммами и другими. Использование клемм – самый надежный, эффективный, удобный и быстрый способ. Для его применения не нужно быть специалистом и нет необходимости приобретать дополнительные инструменты.
Соединение скруткой по законодательству запрещено, однако проверка в квартиру вряд ли нагрянет, поэтому, если ничего другого не остается, этот способ можно применить. Но только при условии выполнения нескольких правил:
- длину скрутки необходимо делать не менее 4–5 см;
- соединяемые провода должны быть зачищены от изоляции и очищены от окисляемой пленки;
- надо обеспечить плотный и ровный контакт между кабелями.
Рекомендации по выбору электрического кабеля
При замене какого-либо участка электропроводки или капитальном ее ремонте после составления схемы необходимо закупить электрические кабели. Но широкое разнообразие видов и материалов порой выбивает из колеи. Как определиться с типом проводов?
- Если встал выбор между алюминиевым и медным кабелем, то покупать лучше медный. Алюминиевые провода используются только для старой проводки, если необходимо заменить какой-либо ее участок.
- Обязательно надо обратить внимание на марку или тип электрокабеля. Самые распространенные типы в последнее время:
- ВВГнг – используется под штукатурку для скрытой электрической проводки, пожароустойчив; ВВГнг-LS – применяется для открытой прокладки проводов, например, под гипсокартон; должен быть закрыт коробом из ПВХ; не выделяет дыма, устойчив к воспламенению; NYMнг-LS – является более дорогим аналогом предыдущего типа, но отличается надежностью и удобством в использовании; ПВС – многожильный кабель, предназначенный для удлинителей и подключения электроприборов к сети.Для того, чтобы понять, что покупаете, внимательно прочитайте расшифровку марок кабелей:если первой стоит буква А, то внутри провода алюминиевая жила, если буквы А нет, то жила медная; В – указывает на то, что изоляция жилы сделана из ПВХ; В – означает, что общая изоляция кабеля выполнена из ПВХ; Г – обозначает, что дополнительный защитный покров отсутствует; нг – говорит о том, что изоляция выполнена из негорючих материалов; LS – свидетельствует о низком уровне выделения дыма при появлении высоких температур.
- Тип кабеля с медными жилами определен, теперь надо выбрать размер его сечения. Для квартир чаще всего применяется кабель с сечением 1,5 мм2, предназначенный для нагрузки не более 3,5 кВт.
- Теперь необходимо подумать, сколько жил должно быть в кабеле. Для старых домов и проводок подойдет двухжильный кабель, а вот для более новой, трехпроводной, лучше выбрать кабель с тремя жилами, а в частных случаях (например, для лампы с двухкнопочным выключателем) – и с четырьмя.
Правила техники безопасности
При контакте с электричеством шутить не стоит, поэтому соблюдение следующих правил является обязательным:
- выполнение всех работ должно производиться в обесточенной квартире или доме;
- не стоит менять «шило на мыло» и ставить по новой алюминиевые провода, кабели с медными жилами гораздо безопаснее и надежнее;
- следует заранее разработать схему заземления, если оно еще не установлено;
- оголенных проводов быть не должно в принципе;
- все открытые участки проводов должны быть скрыты защитными коробами;
- во время любых строительных работ план проводки должен быть под рукой, часто бывают ситуации, когда она случайно повреждается при сверлении, например.
Как сделать электропроводку в квартире?
Монтаж электропроводки в квартире своими руками не такой длительный и затратный, как монтаж проводки в доме. Это связано с тем, что здесь не нужно подводить линию внутрь жилья, т.к. это обеспечивает компания-застройщик.
Разводка кабеля по комнатам состоит из следующих этапов:
- составление схемы;
- расчет количества необходимых материалов и электрической фурнитуры;
- разметка и штробление стен;
- крепление кабеля;
- установка розеток, выключателей и распределительных коробок;
- сборка вводного щитка;
- проверка линии тестером.
Следует отметить, что на сегодняшний день открытое проведение электропроводки в квартире уже не используют, поэтому в данной статье мы рассмотрим монтажные работы скрытым способом.
Весь кабель подходящий для такой проводки вы можете посмотреть на сайте http://cable.ru/cable/kabel-dom.php Там указаны подробные технические характеристики каждой марки. Далее мы предоставим подробную пошаговую инструкцию с нуля, которая подойдет для новичков, желающих проверить свои силы в электрике.
Составление схемы
Схему электропроводки в квартире несложно сделать своими руками. Для этого рекомендуется использовать ксерокопию плана новостройки, на котором можно удобно отмечать места установки розеток. выключателей, светильников и других составляющих элементов.
Начальная точка схемы – место размещения распределительного щитка в квартире. Обычно этим местом является коридор, рядом с входной дверью, на высоте примерно 1,5 метра от пола.
При составлении рекомендуем Вам учитывать следующие советы и правила:
- Трасса квартирной электропроводки должна проходить строго вертикально и горизонтально по стенам. Такое требование обеспечивает меньшую вероятность повреждения. К примеру, по расположению розетки вы сможете узнать, где именно проходит кабель, чтобы случайно не вбить в него гвоздь, когда вешаете картину. В идеале рекомендуется перед забиванием гвоздя найти провод в стене с помощью специального прибора.
- Поворот трассы должен осуществляться только под прямым углом.
- Лучше всего прокладывать линию в верхней части стены, на расстоянии 20 см от потолка (такая высота обеспечит минимальную вероятность механического повреждения и при этом не отобразиться на удобстве ремонта). Также можно провести проводку по полу. а не потолку, используя специальный электротехнический плинтус.
- Выключатели в квартире должны располагаться при входе в комнату, со стороны дверной ручки. Высота размещения выключателей не нормируется по ГОСТу и СНиПу, но, как правило, составляет либо 80 см либо 150 см. По евростандарту лучше устанавливать изделие пониже, к тому же детям будет удобнее включать свет при необходимости.
- Розетки крепятся внизу (30 см от пола), но по необходимости могут размещаться на любой высоте (к примеру, на кухне над столешницей). Рекомендуется на 6 кв. метров помещения устанавливать минимум одну розетку. В кухне количество изделий должно соответствовать количеству бытовой техники, но обычно ставят 5-6 штук. Расстояние от места крепления до двери и окна не должно быть меньше, чем 10 см.
- В каждой комнате должна быть обязательно распределительная коробка.
- Перед тем, как составлять проект электропроводки в квартире, тщательно спланируйте местонахождение бытовой техники и мебели. Случается так, что после электромонтажных работ изделия могут закрываться мебелью, либо шнуры от бытовой техники не достают до источника питания.
- В ванной комнате должно быть минимум 2 розетки (одна для подключения стиральной машинки, вторая для фена).
- Обязательно включите в Вашу схему квартирной электропроводки УЗО на 30 мА, которое защитит от поражения электрическим током. Рекомендуется отдельное УЗО на 10 мА устанавливать для ванной комнаты.
Наверняка вам будут полезными эти статьи:
Советы по выбору фурнитуры
Перед тем, как Вы решите идти в магазин за выключателями, розетками и другими элементами, необходимо определиться с их видом.
Прокладка трассы
Как мы уже говорили ранее, длину проводников необходимо покупать с запасом. Этот запас пойдет на их соединение между собой (с каждой стороны жила оголяется на 5-10 см) и на подсоединение розеток, выключателей, светильников (запас длины от 5 до 15 см).
Для начала определитесь с тем, как электропроводка будет фиксироваться к стене. На сегодняшний день существуют специальные хомуты, но мы рекомендуем Вам использовать «дедовский способ» — крепление разведенным алебастром. Для этого необходимо поместить линию в штробы и через каждые 25-30 см «прихватить» комком алебастра, как показано на фото.

Обращаем Ваше внимание на то, что алебастр затвердевает очень быстро, поэтому действовать нужно в темпе.
После того, как линия будет полностью зафиксирована, рекомендуем Вам сфотографировать все стены, чтобы в случае ремонта вы смогли точно определить место прокладки проводки.
Подсоединение фурнитуры
Данный этап довольно простой, необходимо подключить в квартире все розетки и выключатели. Для этого в штробы устанавливаются подрозетники и специальные коробки. Рекомендуем Вам «садить» данные элементы на алебастр, т.к. он быстро и надежно прихватывается к стене.
Чтобы Вы наглядно увидели процесс, предоставляем к вашему вниманию данный видео урок:
Крепление выключателя и розетки своими руками
Подключение автоматов и УЗО
Последний этап монтажа электропроводки в квартире — сборка вводного щитка. Согласно составленной схеме Вы должны подключить автоматические выключатели и УЗО. Сложностей в подсоединении этих аппаратов не должно возникнуть — вводной провод заводится сверху, а отходящий к распределительной коробке снизу. О том, как подключить УЗО мы рассказывали. Подключение автоматического выключателя также не составит труда, даже чайникам в электрике. Наглядно увидеть процесс монтажа данных устройств Вы можете на видео ниже:
Устанавливаем УЗО в щиток
После того, как все электротехнические изделия в квартире будут подключены, необходимо осуществить прозвонку электропроводки мультиметром. чтобы убедиться в правильности проделанной работы. Если никаких проблем не будет обнаружено, смело включайте автомат и осуществлять первые испытания готовой линии.

Также хотелось бы Вам предоставить данный видео урок, который показывает как сделать электропроводку в квартире своими руками с нуля:
Наглядная видео инструкция
Установка выключателя и розетки своими руками
Устанавливаем УЗО в щиток
Наглядная видео инструкция
Схема разводки электропроводки в квартире
Действовавшими еще пару десятилетий назад нормативами на электроснабжение жилых домов, которыми определялась схема разводки электропроводки в квартире, подразумевалось, что максимальная суммарная мощность потребляемой одним абонентом электроэнергии не превышает 1-1,5 кВт. Впоследствии нормы для однокомнатных квартир были увеличены до 6-10 кВт, однако они мало соответствуют современным реалиям: только кухонные электроприборы могут потреблять электроэнергии в два, а то и в три раза больше…
- Нужно ли ее менять?
- Основные требования к готовому проекту разводки
- Способы монтажа проводки
- Скрытый монтаж
- Открытый монтаж
- Комбинированный монтаж
- Какой способ выбрать?
- Немного о раздельном питании. Электропитании…
- Выбор провода
Нужно ли ее менять?
Сегодня любое человеческое жилье является очень прожорливым в плане расхода электричества – для небольшого коттеджа с общей площадью менее 200 кв. м, например, только проектная потребляемая мощность составляет обычно не менее 20 кВт. И это с учетом использования современного экономичного оборудования, источников света, отличающихся малым потреблением электроэнергии!
Высокие требования к нагрузочной способности электропроводки в новостройках учитываются уже на стадии разработки проекта. Куда хуже дело обстоит со старым жилым сектором, чей возраст насчитывает зачастую несколько десятилетий – заложенная типовая на момент строительства алюминиевая электропроводка совершенно не отвечает современным требованиям, и нередко попросту опасна. Эксплуатация таких помещений, особенно в домах из ЖБ-панелей, практически невозможна без полной замены внутренней системы электроснабжения.

Сгоревшая электропроводка — последствия неправильного распределения нагрузки
Удовольствие это достаточно дорогостоящее даже для однокомнатного жилья, требующее от исполнителя специфичных профессиональных навыков; тем не менее, разводка электропроводки в квартире вполне может быть реализована своими руками – с минимальными усилиями и максимальным эффектом.
Основные требования к готовому проекту разводки
Как и при любых инженерных строительных работах, все начинается с создания проекта. Для внутриквартирных сетей электроснабжения это особенно актуально – электричество, как известно, шутить не любит! Проектирование своими руками с начинается с определения на плане помещения мест расположения потребителей электроэнергии (бытовых электроприборов) и источников искусственного освещения.
При этом в проекте следует учитывать следующие моменты:
- Правильная схема разводки электрических проводов должна иметь минимум пространственных «перехлестов» с другими инженерными коммуникациями (отопительные и вентиляционные системы, системы водоснабжения и канализации). По идее пересечений не должно быть вообще.
- В современном жилище, особенно на кухне, розеток много не бывает!
- Традиционно розетки размещаются таким образом, чтобы они не бросались в глаза – например, прячутся за мебелью. В однокомнатной квартире своими руками это сделать не так уж сложно – но при этом ко всем электроустановочным изделиям обязательно должен обеспечиваться оперативный доступ…
- При монтаже с использованием разветвительных коробок к ним также необходимо предусмотреть свободный доступ.
- В панельных домах проект должен максимально использовать имеющиеся в железобетонных плитах пустоты.
- Не следует забывать о безопасности эксплуатации монтируемой своими руками электропроводки – по плану розетки и выключатели не стоит помещать в сырых или сильно нагревающихся местах.
- Освещение помещения, особенно большого, одной расположенной по центру люстрой малоэффективно – намного лучше будет, хоть и несколько дороже, если добавить к ней зональные источники света. Это правило может нарушаться в однокомнатных квартирах, но в комнатах с высокими потолками нарушение недопустимо.

Примерная схема разводки электропроводки в доме
Способы монтажа проводки
Второй этап создания проекта – принятие решения, как сделать разводку электропроводки с учетом материала, из которого построено здание. Проще говоря, в соответствии с планом выбирается способ монтажа проводов, розеток, выключателей, регуляторов и распредкоробок. Таких способов всего три:
- Скрытая электропроводка;
- Открытая электропроводка;
- Комбинированный монтаж.
Скрытый монтаж
Все без исключения ответвительные и магистральные провода маскируются всеми возможными способами – вмуровываются в стены, заливаются устраиваемой на полу бетонной стяжкой, закладываются в пустоты плит панельных домов, при наличии подвесных потолков – прячутся в запотолочном пространстве.
Наши читатели рекомендуют!
Для экономии на платежах за электроэнергию наши читатели советуют «Экономитель энергии Electricity Saving Box». Ежемесячные платежи станут на 30-50% меньше, чем были до использования экономителя. Он убирает реактивную составляющую из сети, в результате чего снижается нагрузка и, как следствие, ток потребления. Электроприборы потребляют меньше электроэнергии, снижаются затраты на ее оплату.

Скрытый монтаж электропроводки — вмуровывание проводов в стену
Видимыми при таком проекте монтажа остаются только розетки — выключатели и светильники. Распределительные коробки при скрытом монтаже устанавливаются крайне редко – обычно провода от каждой «точки» сводятся в один большой распределительный щит, где они и соединяются друг с другом в соответствии с планом работы электрооборудования.
Открытый монтаж
Открытая электропроводка, по сравнению со скрытой, подразумевает визуальную доступность большей части проводов. В декоративных целях и для облегчения монтажа они обычно укладываются во внутрь пластиковых коробов (другие названия – электрокороба, кабель-каналы), все соединения делаются в доступных для обслуживания распределительных коробках.

Пример открытого монтажа электропроводки
Из-за своей технологической простоты это самый распространенный способ монтажа электропроводки своими руками. однако он требует тщательного продумывания плана трассировки проводов – если они будут пересекаться друг с другом, то место перехлеста будет очень трудно «окультурить»…
Комбинированный монтаж
Комбинированный монтаж в проектах используется сравнительно редко. Суть его следующая: основная масса проводов прячется в запотолочном или подпольном пространстве. Видимыми делаются только спуски (с потолка) и подъемы (с пола) проводов к розеткам, выключателям и светильникам.
Такая разводка электропроводки используется обычно в подсобных и хозяйственных помещениях – в случаях, когда требования к красоте интерьера в комнате минимальны.
Какой способ выбрать?
Все три типа монтажа имеют свои недостатки и достоинства, сориентироваться в которых поможет следующая таблица:
Источники: http://trastroom.ru/dom/sovety/kak-sdelat-razvodku-elektroprovodki-v-kvartire.html, http://samelectrik.ru/montazh-elektroprovodki-v-kvartire.html, http://electricvdele.ru/montaj/shema-razvodki-elektroprovodki-v-kvartire.html
electricremont.ru
Проводка в квартире своими руками
Сегодня практически каждый старается возвести жилище по индивидуальному проекту. При этом многие будущие владельцы квартир хотят, чтобы проводка была проложена с учетом их требований. Поэтому предпочитают сделать это самостоятельно. Но не всегда знают, как должна быть выполнена проводка в квартире своими руками правильно.
С чего начать
- Начинать работы по проведению электричества в квартире, необходимо с составления схемы расположения основных бытовых и осветительных приборов и мест их подключения к электросети.
- Затем производится разметка на стенах: где конкретно будут проложены провода, а также места, где будут вмонтированы выключатели и розетки. В первую очередь необходимо отметить расположение основного прибора – распределительного щитка, с установленными на нем счетчиком и защитными устройствами.
- Далее необходимо рассчитать необходимое количество выключателей и розеток, длину проводов.


Как правильно выбрать провода и устройства для защиты
Для электропроводки в жилом помещении лучше всего подойдут провода из меди. В отличие от проводов из алюминия они обладают большей гибкостью и высокой электропроводностью.
Чаще всего используют провода ПУПН или ВВГ с двумя или тремя жилами. Они имеют различное сечение. Для определения кабель, какого сечения необходим, сложите мощность всей бытовой техники и разделите на 220. Если полученный результат не превышает 16 А, то достаточно провода с сечением 1,5 мм?.
Обычно его используют для подведения тока к осветительным приборам, а для розеток желательно выбрать кабель сечением — 2,5 мм?. Для современных автоматических машин и электроплит потребуется кабель сечением 4 мм?.
Для защиты бытовой техники от перепадов напряжения, последствий короткого замыкания потребуются:
- УЗО 30 мА класса А – в ванной комнате.
- Пробка-автомат 25А тип В – для обеспечения безопасности работы электроприборов.
- Пробка-автомат 10А и 16А тип В – для осветительной сети.

Способы монтажа проводки в квартире
- Наиболее простым является открытый способ. Для его выполнения не требуется подготовительных работ. Провода закрепляются на стене или потолке с помощью специальных скоб. Их можно декорировать установочными коробами. В деревянных строениях, в целях обеспечения пожарной безопасности, рекомендуется применять монтаж проводки в квартире открытым способом.
- В большинстве городских квартир, рекомендуется скрытый способ монтажа, при котором проводка в квартире своими руками выполняется до начала отделочных работ. Так например для того что бы повесить люстру к потолку, а после подключить её к электросети будет целесообразно использовать скрытую проводку. В кирпичных домах для этого делают штробы. В панельных домах укладка проводов осуществляется в специальные каналы, предусмотренные в плитах. Недостатком скрытой проводки является высокая вероятность ее повреждения во время ремонта стен и потолка.
Как проводится скрытый монтаж проводки в квартире
- Закрепить на стене, на высоте 2 м от пола, распределительный щит и установить на нем предохранители и счетчик.
- По намеченным на стене линиям для размещения проводов делаются бороздки – штробы. Для этого можно использовать болгарку, оснащенную специальным абразивным диском, долото или зубило.
- С помощью специальных петель или хомутиков из пластика закрепить провода в штробах и закрыть их гипсом или алебастром.
- Под розетки и выключатели сделать в стене углубления. Для этого можно воспользоваться перфоратором или буром. В них на алебастр установить подрозетники. Установить распаечные коробки.

Как выполняется замена проводки в квартире
По технике безопасности, перед тем, как приступить к работам по замене старой проводки, квартира должна быть полностью обесточена.
- Замена проводки в квартире выполняется постепенным прокладыванием новых проводов параллельно устаревшим, с одновременным подключением к ним выключателей и всех розеток, с переходом из одной комнаты в другую. Рекомендуется начинать от распределительного щитка. При этом надо стараться не повредить старый кабель.
- После того, как кабель протянули во все комнаты, чтобы поменять проводку в квартире, его укладывают в штробы, из которых полностью удаляется старый провод. В случае если сделать это не удается, делают новые каналы над старыми или под ними на расстоянии 50-ти мм.
- Соединяются концы кабеля — в тусо-распаечных коробках посредством клеммников. При этом важно не перепутать провода, идущие на ноль и на фазу. Они должны различаться цветом.
- Крепление проводов в штробах – на алебастре, с последующей шпатлевкой.
- Подсоединение выключателей и розеток производится после того, как шпатлевка полностью высохнет. Оголенные концы проводов перед соединением обслуживаются с помощью паяльника.
- Если замена проводки в квартире требует проведение ее через стену, вводные кабели надо протягивать через металлический рукав или гофрированную трубу, вставленные в проделанное в стене отверстие.
Видео инструкция по монтажу проводки в квартире своими руками:
boldproject.ru
Разводка электрики в квартире своими руками: фото проведения работ
Спуск электрического кабеля в стене
В современных квартирах электрическая проводка является мощной коммуникацией, без которой даже не подразумевается нормального проживания. При отсутствии электропитания мы чувствуем себя отрезанными от внешнего мира, не говоря уже о личной гигиене, приготовлении пищи, медицинских и спортивных принадлежностях и так далее.
И чем тщательнее продумана разводка электрики в квартире, тем легче и комфортнее мы себя чувствуем. Схема разводка своими руками — есть вожделенная мечта многих домашних умельцев. И при всей её сложности существует возможность выполнить эту работу самостоятельно.
Разметка энергоносителей
Учитывая, что ввод электрического провода в квартиру уже проделан, рассмотрим, что и в какой комнате нам придется подключать. При этом очень важно, чтобы все дозы, розетки, выключатели и тумблеры находились в легкодоступных местах. Все части этих приборов, находящиеся под напряжением, должны быть закрыты пластмассовыми корпусами.
- Розетки устанавливаются в тех местах, где предположительно будет находиться электрооборудование. Схема их размещения такова. Высота от пола должна составлять от 30 до 80 см. Минимальное количество розеток определено правилами пожарной безопасности. На каждые 6 м2 должна приходиться как минимум одна розетка. Особые требования предъявляются к техническим помещениям, кухне и ванной комнате. Количество розеток в кухонном помещении должно быть больше, чем в обычной комнате. В ванной комнате розетки должны быть закрытого типа, или они должны располагаться в местах, недоступных для попадания воды. Запрещено устанавливать розетки вблизи заземленных металлических устройств. Это могут быть трубы отопления, радиаторы, газовые и электрические котлы. Минимальное расстояние – 50 см.
- Выключатели располагаются на удобной для вас высоте, с учётом того, чтобы они были легкодоступны и не находились за дверью. Выключатели желательно располагать по одной стороне, чтобы в темноте было проще ориентироваться. Запрещено устанавливать выключатели в ванных комнатах, а также вблизи заземленных металлических устройств. Это, как и в случае с розеткой — трубы отопления, радиаторы, газовые и электрические котлы. Минимальное расстояние до них — 50 см.
- Электрические дозы должны располагаться под потолком и не должны закрываться обоями или шпатлевкой. Запрещено устанавливать дозу в ванной комнате, а также ближе 50 см от приборов с заземлением.
- Электрический распределительный щит устанавливается обычно в прихожей на уровне глаз, но не более 170 см от пола. Доступ к распределительному щиту должен быть свободным.
- Электрический счетчик устанавливается на высоте от 80 до 170 см от пола до зажимной коробки, хотя обычно предпочитают последнюю высоту. Для электрического счётчика можно сделать в стене нишу. Он должен находиться в легкодоступном месте не ближе 50 см от заземленных приборов. В большинстве случаев электрический счётчик вынесен за пределы квартиры, и сталкиваться с его монтажом не придется.
Проводка
Разводка электрики по потолку
Разводка электрики подразумевает укладку проводов по конкретному маршруту и определённым образом. То есть, составляется схема их проводки. Провода, скрытые в стене, должны располагаться строго по вертикальной или горизонтальной линии. Обязательно составляется схема для запоминания трассы. Это можно сделать своими руками. Это предотвратит повреждения проводки при сверлении стен.
- Горизонтальная укладка проводки вблизи балок и карнизов производится на расстоянии 5-10 см, от потолка — на расстоянии 15 см, а от плинтуса – от 15 до 20 см.
- Вертикальная укладка проводки производится на расстоянии не менее 10 см от оконных и дверных косяков и углов помещения.
- Запрещена укладка электропроводов параллельно газовым трубам на расстоянии ближе 40 см.
- Запрещена смешанная укладка проводки, так называемым пучком. Провода должны находиться на расстоянии не менее 3 мм друг от друга.
- Прокладка электропроводов в непосредственной близости возле труб отопления разрешена только в случаях защиты асбестовой прокладкой или специальной изоляцией провода.
- Провод заземления по своему сечению не должен быть меньше фазного провода.
- Соединения на заземлении должны производиться при помощи болтов.
- Линия заземления не должна содержать каких-либо предохранителей и (или) выключателей.
Скрытая проводка
Монтаж электрощита
Скрытая проводка сегодня является самым распространенным видом электрической проводки в квартире. Это самый безопасный и надёжный метод проводки. Главным и, пожалуй, единственным недостатком такого метода является её основное преимущество – закрытость. Дело в том, что при подключении новых токоприёмников необходимо каждый раз вскрывать стены. Скрытый монтаж электрической проводки требует соблюдения определённых правил:
- Если основание стены состоит из дерева, то под проводку, во избежание пожара, необходимо подкладывать слой асбеста 3 мм.
- Нельзя допускать пересечения проводов. Если такая необходимость существует, то в этих местах нужно поставить дополнительную изоляцию.
- Для вывода скрытой проводки на поверхность необходимо пользоваться изоляционной трубкой.
- Все соединения скрытой проводки производятся в распределительных дозах.
- Крепление проводки в каналах при укладке производится при помощи шпатлевки, алебастра или пластиковых хомутов.
Открытая проводка
Такой вид проводки самый простой в исполнении своими руками и, безусловно, очень удобен при подключении новых токоприёмников. В настоящее время практически не используется. Отметим, что схема разводки и в том, и в другом случае одинаковая.
Комбинированная проводка
Коммутация кабелей в распаечной коробке
Такой вид проводки достаточно широко используется в современном строительстве и включает в себя все преимущества обоих вышеупомянутых видов. Выполняется в кабель-каналах. Благодаря им проводка получается одновременно и закрытой, и легкодоступной. Кабель-каналы бывают различной ширины и толщины. В них также можно укладывать телефонные и телевизионные кабеля. Кабель-канал также может быть оборудован в плинтусах. Если вести разговор о процессе своими руками, то предпочтение лучше всего отдать именно этому.
Проводка под гипсокартоном
Такая проводка больше подходит к разряду закрытых проводок. Провода, которые тянутся под гипсокартоном, продеваются в специальный защитный гофрированный шланг.
Заземление
Для заземления электроприборов используется замкнутый контур, находящийся вне квартиры, но в пределах здания. Все розетки должны быть заземлены в одной цепи. Схема подключения не очень сложная, так что своими руками заземлить всю электрическую цепь будет просто.
Так как подавляющее большинство домов советского домостроя не имеют контура заземления, и поставить его не представляется возможным, то вместо заземления используют ноль.
Сечение проводов для квартиры
Розетки и выключатели устанавливаются после чистовой отделки квартиры
При скрытом способе проводки медный провод сечением 1 мм выдерживает нагрузку до 3 кВт. Это говорит о том, что для освещения квартиры провода с таким сечением вполне достаточно. Для розеток такого сечения, безусловно, будет не хватать. Поэтому для розеток можно использовать медный провод сечением 2 мм. Провод с таким сечением выдерживает мощность до 4,1 кВт. Его в обязательном порядке используют для подключения бойлера.
Если в вашей квартире недостаточно мощности для каких-либо электроприборов, например, электроплит, то вам необходимо обратиться в местное предприятие электросетей, с просьбой об увеличении мощности. Кстати, подключать электроплиты своими руками не советуем. И хотя сама схема достаточно проста, здесь необходимо проложить отдельный провод с определенным сечением.
Электрический распределительный щит
Каждую комнату в квартире можно подключить через электрический распределительный щит. Для этого, безусловно, потребуется большее количество провода, но это того стоит. Вы получаете возможность подавать питание на каждую комнату в отдельности, что очень удобно в дальнейшем, если придется выводить линии на какие-либо новые токоприемники. Также можно через распределительный щит подключать определённую цепь розеток или отдельные электроприборы. Здесь важно, чтобы схема была правильно и грамотно создана и собрана. Если вы в этой области специалист, то можете все делать своими руками.
Заключение
Схема разводки представляет собой такую цепь: от электрического счетчика питание подается на распределительный электрощит, с электрощита на отдельные электроприборы и электрические распределительные дозы, находящиеся в других комнатах. А от доз питание подается на розетки, выключатели и осветительные приборы.
Предохранительные автоматы на электросчетчике лучше устанавливать не менее 20-25 ампер, чтобы при одновременном включении многих токоприемников они не выбивали. Если у вас есть возможность поставить автоматы, пропускающие такую силу тока, то вы сможете спокойно пользоваться даже электросваркой в домашних условиях. Но удобство эксплуатации электрики будет зависеть от того, какая схема вами выбрана.
remontmechty.ru
Электропроводка в квартире своими руками: пошаговая инструкция, монтаж
Для внушительного количества людей домашний ремонт является большой проблемой и тяжелым стрессом, но не бойтесь, в данной статье опытные мастера с удовольствием поделятся знаниями и подробно, пошагово, расскажут, как собственноручно провести электропроводку в квартиру своими руками. Это не сложно, будьте уверены в себе и своих силах, следуйте инструкциям, а так же помните о соблюдении техники безопасности при работе с электричеством.

Если впоследствии у вас возникнут неразрешимые сложности или непонятен какой-либо из описанных ниже шагов, то тогда разумнее обратиться за помощью к командам профессиональных электриков — ремонтников, поскольку они, используя опыт и наработанные умения, выполнят работу самостоятельно и избавят вас от терзающей неуверенности. В противном случае, Ваше подспорье — данная статья.
План — схема
Прежде чем приступить к воплощению желаемого в действительное, следует, как и во время любой другой работы, разработать план — схему, по которой вам важно ориентироваться впоследствии. В первую очередь нужно на листе изобразить план жилого помещения, а так же учесть местонахождение бытовой техники, осветительных приборов, выключателей, розеток, дверного звонка, телефонов и электрического щитка. Выполняйте эту работу в пошаговом режиме, чтобы добиться максимального качества, и помните, что ко всем проводимой вами мероприятиям нужно отнестись с должной ответственностью, не торопиться, но и не переусердствовать. Ошибки во время составления план — схемы на этапе строительства могут дорого обойтись.
Полезный совет:Для понятного понимания положения дел рекомендуется осветительную, и розеточную схемы рисовать на сторонних листах одного чертежа. Продумайте количество розеток и ламп, а так же местонахождение распределительного щитка, исходя из индивидуальных особенностей жилой площади.
Уделите требуемое внимание помещению с ванной, туалетом и раковиной, так как в данных комнатах присутствует повышенная влажность, соответственно, проводка в подобных местах должна быть хорошо защищенной от воздействия воды. Не лишним будет подвести к ванной комнате устройство защитного отключения, которое, в случае утечки электричества, обесточит всю комнату и спасет от внезапно нагрянувшей катастрофы.

Полезный совет:Розетки в ванной, для большей безопасности и спокойствия жителей квартиры, должны быть обязательно заземлены.
Так же, готовя план — схемы учтите мощность подключаемых в сеть электроприборов, особенно габаритных, таких как холодильник или электрическая плита. Вы рискуете пережечь слабую электропроводку и вызвать пожар, если будете использовать ее там, где требуется более качественная. Не забудьте определиться с выбором автоматического выключателя, устанавливаемого в электрический щит.
Методы монтажа.
Строители предоставляют на выбор два метода монтажа электропроводки – закрытую и открытую.
Открытой называют сеть проводов, располагаемых вдоль полов и стен с помощью специальных пластиковых трубок, а так же под плинтусами. При выборе такого типа проводки внимательно оцените факт того, что нельзя тянуть осветительные и силовые кабели в одном месте, а плинтуса лучше сделать устойчивыми к огню, чтобы, в случае неполадок в электросети, не возникло дополнительных сложностей.

Закрытой электропроводкой именуют кабели, пущенные внутрь стен, потолков и прочих ограждений. Учтите, что при выборе проводки закрытого типа вам понадобятся упрочненные кабели, устойчивые к горению, влажности и физическим повреждениям, поскольку провода, замурованные в стенах, должны безотказно работать в течение крайне обширного периода времени, и экономия денежных средств на кабелях вполне способна вылиться в новый, никому не нужный и совершенно неуместный ремонт.
Полезный совет:Еще на этапе создания план — схемы составьте список необходимых материалов и подсчитайте необходимую длину проводов, учитывая все особенности креплений и подвода контактов.
Забудьте о мысли сэкономить во время ремонта на кабелях, розетках и пластиковых трубах, поскольку Ваша задача — провести в родной дом добротную электропроводку, которая прослужит годы. Установка сомнительной продукции глубинок китайских провинций в будущем зачтется вам дополнительными расходами и растраченными впустую силами и нервами. И помните, что кабели следует располагать в вертикальной или горизонтальной плоскости, но никак не косо, за исключением прямого угла, поскольку косое расположение электропроводки создает риск разрыва кабеля и создания внештатных ситуаций.
После того, как вы определились в выборе типа электропроводки, приготовьте все необходимые инструменты и следуйте пошаговой инструкции.

Шаг первый: Штробление стен.
- Штробление – это процесс вырезания в стене небольшого канала, в котором будут располагаться электрические провода. Для выполнения данной задачи вам понадобятся соответствующие инструменты, как, например, зубило или перфоратор со сверлом по бетону. Что касается размеров канала, то он не должен превышать двух сантиметров в ширину и глубину, но исходить следует из размеров используемого кабеля.
Полезный совет:Существует множество способов вырезания каналов в бетонных стенах. Исходите из своих возможностей и наличия рабочих инструментов. Не имея болгарки с диском работы по бетону, можно использовать дрель или зубило и молоток.
Шаг второй: Прокладка трассы
- Готовясь прокладывать кабель, учтите, что проводник должен иметь запас длины, поскольку подключение проводов к розеткам, электрическому щитку и осветительным приборам, требует контакта оголенными жилами, поэтому прибавляйте к планируемой длине кабеля плюс 7-8 сантиметров. Не забудьте предварительно обесточить дом, отключив главный автомат или иными способами, а так же действуйте крайне осторожно, чтобы исключить возможность поражения электрическим током во время проведения работ.
- Установленный кабель должен прочно прилегать к стене, поэтому определитесь со способом фиксирования электропроводки в штробе. Запомните положение проводов в стене, поскольку во время будущих ремонтов эта информация будет для вас невероятной полезной.
Интересный факт:В советское время во время прокладки трасс активно использовался разведенный алебастр, который очень быстро застывал и «захватывал» провод, присоединяя его к стене. При работе с этим материалом учитывайте тот факт, что алебастр схватывается очень быстро, поэтому максимально сократите время работы с данным материалом.

Шаг третий: Фурнитура и отделка.
- Подключение фурнитуры — не требующий серьезных усилий процесс, целью которого является присоединение выключателей и розеток к протянутым по штробам проводам. Для этой цели используются специальные подрозетники и коробы.
Полезный совет:Для монтажа электросетей лучше использовать одножильный медный провод, поскольку при дальнейшем соединении проводов скрутка с одножильными проводами значительно жестче. Подключение розеток одножильным проводом так же будет надежнее альтернативных.
- Выбирая подходящую фурнитуру обращайте внимание на материал и сопроводительные бумаги, которые могли бы подтвердить их качество. И не забывайте, что электрические розетки являются устройствами повышенной пожарной опасности, поэтому не размещайте их рядом с раковинами, газовыми или электрическими плитами и ванной. Так же не подсоединяйте розетки вблизи пола, поскольку, в случае затопления последнего, может возникнуть короткое замыкание и разгореться пожар.
Полезный совет:Помните о технике безопасности при работе с электроприборами и постарайтесь учитывать все возможные ситуации, способные произойти в вашей квартире и за пределами. Помните: Вы строите на годы вперед!
- По завершению установки розеток, выключателей и прочей фурнитуры, следует заштукатурить стены, скрывая проделанную работу и приводя жилое пространство в более презентабельный вид.

Шаг четвертый: Электрический щит
- Сборка и установка электрического щита – это заключительный шаг монтажа электропроводки в квартире. Сопоставьте электрические кабели с устройствами автоматического выключения и УЗО с помощью составленной вами план — схемы. Помните, в аппаратах УЗО вводной провод подключается к верхней части, а отходящий – к распределительной коробке в нижней. С успешным выполнением данного шага монтаж электропроводки в квартире завершен, остается только подключить ее к внешнему энергоносителю, расположенному в самом жилом доме.
Интересный факт:Наличие УЗО в электрической сети не спасает от короткого замыкания и энергетических перегрузок, поэтому обязательно дополняйте цепь автоматическим выключателем.

Шаг пятый: Внешний энергоноситель.
- Подключение электричества от главного носителя в квартиру является весьма трудоемким процессом, поскольку для осуществления данной задачи Вам потребуется согласование ответственных организаций и перечень документов, разрешающих вам проводить данные операции. Нотариально заверенная схема проводки является одним из ключевых документов для получения разрешения на подключение вашей энергосети к главному носителю. «Бумажная волокита», связанная с подключением вашей квартиры к внешнему источнику электропитания может занять столько же времени, сколько занял монтаж электропроводки.
Полезный совет:Подключение вашей домашней электрической сети к внешнему энергоносителю лучше предоставить ответственным за жилое здание лицам, поскольку только им доподлинно известны все тонкости устройства подачи электропитания в доме.
couo.ru











